Scandi Layers
Scandi Layers is a Scandinavian-inspired 3BHK infused with subtle luxury, fluid forms, and soft curves. Rounded edges, layered textures, and sculpted arches create a playful yet refined spatial flow, giving the home its signature scandi-like character.
CATEGORY
Turnkey
CONFIGURATION
3 BHK 1217 sq ft
LOCATION
Borivali, Mumbai
The Space
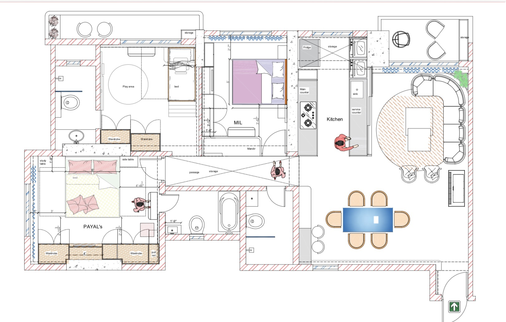
A thoughtfully planned 3 BHK residence with a 1217 sq. ft. carpet area, designed to balance comfort and functionality.
The home features two well-positioned balconies that bring in ample natural light and ventilation, enhancing the overall openness of the space.
The layout includes a spacious living–dining area, a functional kitchen, and three comfortable bedrooms—crafted to suit everyday living while allowing room for personalized design details.
Client Requirement
One of the key requirements was a prominent mandir that acts as a highlight within the home. The clients also wanted a living room divided into multiple functional zones, an open island kitchen for a more interactive layout, and a daughter’s room designed with multiple activity zones to support learning, play, and everyday use
The Result
Overall, the outcome is a thoughtfully planned, elegant Scandinavian home that feels warm, luxurious, and perfectly aligned with the family’s lifestyle.The completed home reflects a luxury Scandinavian aesthetic, balancing minimal design with refined detailing.
Soft, neutral tones and clean lines create a cohesive flow across the residence, while each room carries its own distinct identity. The daughter’s room is designed in pastel hues, creating a cheerful yet calming environment, with dedicated zones for learning, play, and rest.
The parents’ bedroom features lighter color palettes and warm lighting, offering a soothing and comfortable retreat.
In contrast, the master bedroom is styled in a darker, more intimate theme, enhancing the sense of luxury and depth, complemented by a walk-in wardrobe feel.













































Hear it From the Owner
I came across Lifeskapes by Sapna Jain on Instagram while randomly browsing for interior ideas. Their work instantly caught my eye – clean, well-balanced designs with a nice mix of modern and traditional elements.
The space looks stylish but still feels homely and practical. I visited after the work was done and could see how thoughtfully everything had been planned – nothing felt overdone. My cousin also mentioned that the team was easy to work with and open to feedback during the process.
- Mrs. Bijal Sheth